產品描述


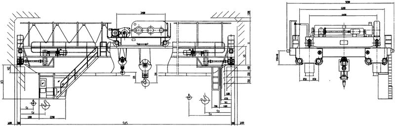
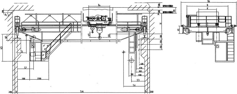
QDY吊鉤橋式鑄造起重機主要用于吊運熔融金屬的冶金、鑄造等場所,整機工作級別為A7,在主梁底部加設隔熱層裝置。起重機裝配與試驗符合國家質量監督檢驗檢疫總局所發的質檢辦特[2007]375號文件。其它吊運熔融的非金屬物料和吊運熾熱固態金屬的場所也可參照選用。(注:以下圖中H0為大車緩沖器增加的高度。H0≤250)
環境條件:
1、起重機的電源為三相交流,額定頻率為50HZ,額定電壓為380V;
2、工作環境溫度為-10~+60℃;
3、在+40℃的溫度下相對濕度不超過50%;
4、如超過上述要求,根據用戶需要按訂貨合同條款執行。
訂貨須知:
用戶在定貨或簽訂合同時,必須將本機的基本參數(額定起重量、起升高度、跨度等)描述清楚,以便提供滿足工況要求和工作條件的產品。



產品訂購
- 上一篇:YZ型雙梁鑄造橋式起重機
- 下一篇:沒有了;








